
TÉMA OŽAROVAČE-FEEEDHORNS PRE STREDOVÉ-PRIME FOCUS ANTÉNY : DEFINÍCIA ROZMEROV+VÝBER VHODNÉHO MATERIÁLU K VÝROBE+PLASTOVÁ OCHRANA VSTUPU OŽAROVAČA+VLNOVODNÁ KRYTKA+FOTOGALÉRIA OŽAROVAČA SMW XM 140....
a,Feedhorn Invacom ADF-120_mechanical drawing: Rozmery ožarovača pre stredové antény
b,Ožarovač Kovosat 90>140_výkres : Rozmery ožarovača nielen pre antény typu Kovosat
kovosat-ozarovac-výkres-rozmery-4960x3507
Otázka od : Ing . Alfréd Adámek
Lokalita : Česká republika
TEXT OTÁZKY :
Dobrý den
Na základě tohoto výborného článku :
AUTOR : Roman Dávid - www.dxsatcs.com - VÝBER VHODNÉHO LNB PRE ANTÉNU KOVOSAT 120 cm + AKO SÚVISÍ STABILITA LOF S VONKAJŠOU TEPLOTOU PRI LNB NORSAT,SMW,MTI + VYSVETLENIE ELEMENTÁRNYCH POJMOV ako sú : EXCESSIVE & INADEQUATE ILLUMINATION + POMER f/D A ÚČINNOSŤ REFLEKTORA + ROZMERY OŽAROVAČA PRE KOVOSAT 120 .
píšu jeden dotaz.
Taky vlastním kovosat 120 ale bez ozařovače.Ve výše uvedeném článku popisujete jeho rozměry.
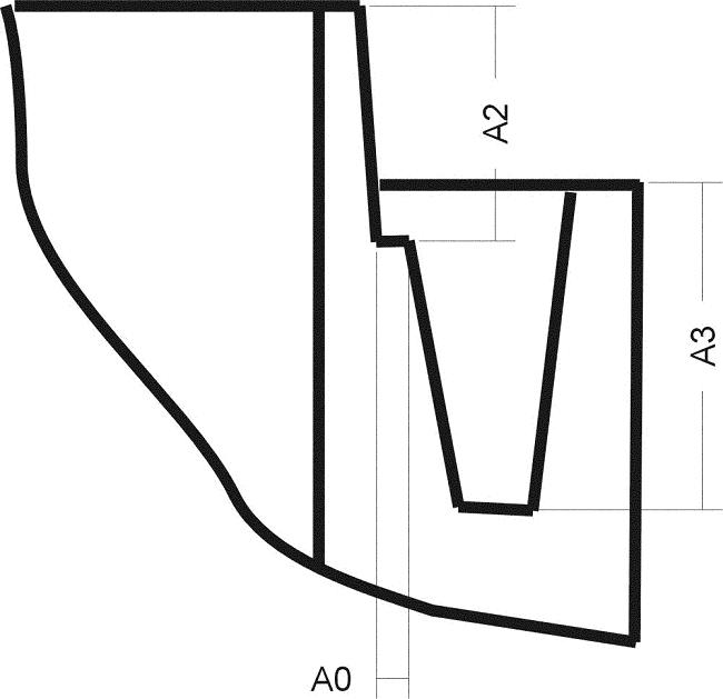
1, Jak ale vypadá jeho řez (z jedné strany je prům. 22 a z druhé prům. 17), kde a jak se průměry spojují?
2, Musí být plastová krytka přítomna?
3, Jaká je hloubka vybrání dle obr.viz. kóty v přiloženém obrázku?
4, Je možné toto zhotovit z duralu nebo jen z nerezu.
Děkuji za odpověď
Adámek Alfréd
ODPOVEĎ od dxsatcs.com:
Zdravím Vás p.Adámek ,
Váš dotaz je plne opodstatnený ,
/ nakoľko vo vyšie spomínanej práci o anténe KOVOSAT 120 cm , ktorá v praxi reálne dosahuje ekvivalentný zisk k jej aktívnemu priemeru 114 cm spolu s originálnym ožarovačom v stredovom prevedení bez skalárnych prstencov.../
lebo rozmer , ktorý Vám chýba k výrobe tohoto ožarovača sa v popise naozaj nenachádza,nakoľko už som sa v praxi stretol že práve pri nedodržaní vzdialenosti kónického poklesu priemeru kruhového vlnovodu ožarovača zo vstupného priemeru 22 mm k výstupnému rozmeru vlnovodu 17 mm sa to následne prejavilo aj v nameranej signálnej kvalite pri hraničnom príjme napr. na družici Nilesat 7,0°W s anténou Kovosat 120 cm v Slovenských podmienkach príjmu - V polarizácia v jednotkách desatiny z úrovne Modulačnej Chyby MER - od 0,2 do 0,5 dB pri samozrejme teoretickom predpoklade o konštantantnej úrovni signálnej kvality na vstupe ožarovača ! Len pre informáciu doplním že každý vlnovod resp.ožarovač má v praxi meratelný útlm signálnej kvality od 0,15 do 0,4 dB z MER v závislosti od jeho prevedenia a typu !
TÉMA č. 1 : Kde a jak se průměry 22 mm a 17 mm spojují?
Nafotil som Vám opätovne stredový ožarovač ,ktorý sa dodával pre stredové antény typu Kovosat od diametru reflektora 90 cm po 140 cm , kde som presne popísal v akej vzdialenosti /presne 22 mm podobne ako priemer vstupu ožarovača/ od ústia-čiže vstupu ožarovača po kónickom poklese priemeru s bližšie nedefinovaným klesaním v mm na jednotku 1/2 palca, nastáva prechod na konštatný priemer kruhového vlnovodu 17 mm,ktorý pokračuje až do výstupu ožarovača .
PRIME FOCUS FEEDHORN SMW : klasické stredové prevedenie ožarovača , ktorý svojím prevedením definuje jeho použitie pri stredových anténach s anténnym pomerom f/D od 0,3 do 0,45
TÉMA č.2 : Prítomnosť plastovej krytky-PLASTIC COVER :
Z praktického pohľadu nemá tento originálny plastický kryt ústia ožarovača v KU pásme súvis s poklesom signálnej kvality a má skorej súvis s ochranou vlnovodu pred poveternostnými vplyvmi a hmyzom,ktorý by stál na prekážku postupu VF signálu do LNB.Ja osobne používam tzv. vlnovodné krytky s hrúbkou 0,25 mm,ktoré zaraďujem do signálnej cesty medzi ožarovač a mechanický polarizátor ,ktoré majú na výslednú signálnu kvalitu zanedbatelne malý vplyv a prvý krát som sa s touto ochrannou krytkou vlnovodu stretol pri vonkajšej signálnej jednotke s magnetickým polarizátorom od švédskej firma SMW z roku 1987,kde bola zaradená medzi výstupom C120 stredového ožarovača a vstupom C120 magnetického polarizátora SMW XF 45 !
PLASTIKOVÉ KRYTY: Bežné plastové kryty C pásmových vlnovodov
TÉMA č.3 : Vhodný materiál na výrobu :
V praxi sa mi potvrdilo že prioritne vhodným materiálom na výrobu ožarovačov nie je nerez ale zliatiny na báze AL ako napr. dural a pod. Ja osobne som si zaobstaral vysoko pevný a zároveň ľahký materiál ,ktorý je svojím zložením takmer identický duralu a používa sa pri výrobe súčiastok v leteckom priemysle.Dodávatelia mi tento materiál dodali v tvare plného valca.
ORIGINÁL A KÓPIA STREDOVÉHO OŽAROVAČA KOVOSAT S PLASTIKOVOU OCHRANOU VSTUPU
TEXT OTÁZKY č.2 :
Děkuji za brzkou odpověď
Snad jediný rozměr, který asi není tak důležitý, je označen červenou kótou a otazníkem, jde o výšku od prům. 22 po osazení. Zelená kóta D14 je určitě rozměr od průměru 22 a ne od průměru 48, ale to jen pro 100 % jistotu.
Děkuji za ochotný přístup
S pozdravem Adámek Alfréd
PRIME FOCUS FEEDHORN SMW XM 140 : kvalitné prevedenie stredového ožarovača pre reflektorový pomer f/D od 0,3 do 0,45 s nalisovaným krytom z plexi-skla s materiálu HLINÍK AL
ODPOVEĎ od dxsatcs.com č.2 :
Dobrý večer p.Adámek ,
Áno zelená kvóta je rozmer od vrcholu vstupného vlnovodu s d=22 mm nie od vonkajšieho priemeru s d=48 mm !!! Červenou farbou som doplnil požadovaný rozmer vo FOTOPRÍLOHE mailu.
Ostávam s pozdravom
POUŽITÁ LITERATÚRA :
AUTOR : Roman Dávid - http://dxsatcs.com - STREDOVÝ RX REFLEKTOR DH ANTENNA USA s D= 240 cm a f/D 0,375 v PRAXI + VÝHODY A NEVÝHODY KOMBINOVANÝCH VLNOVODOV C/KU SEAVEY + MECHANICKÝ SPôSOB VÝBERU POLARIZAČNÝCH ROVÍN V a H POMOCOU ROTOROV REISAT A HIRSCHAMNN ....
AUTOR : Roman Dávid - www.dxsatcs.com -AKO SÚVISÍ POMER OHNISKOVEJ VZDIALENOSTI K PRIEMERU ANTÉNNEJ PLOCHY f/D S VÝBEROM VHODNÉHO OŽAROVAČA ALEBO UNI LNB NA PRÍKLADE OFSETOVEJ ANTÉNY EMME ESSE 70 S UNIVERZÁLNYM LNB INVACOM SNH 031.
AUTOR : Roman Dávid - http://dxsatcs.com - AKO SÚVISÍ VÝBER VHODNÉHO OŽAROVAČA KU STREDOVÉMU REFLEKTORU s priemerom D=170 cm S POMEROM f/D 0,43 S VÝSLEDNOU SIGNÁLNOU KVALITOU PRI ANTÉNE TYPU PRIME FOCUS .
AUTOR Roman Dávid - www.dxsatcs.com - TECHNICKÉ PARAMETRE KOMPONENETOV SIGNÁLNEHO REŤAZCA č.9 :PREDSTAVENIE ZISKOVEJ STREDOVEJ PRÍJMACEJ ANTÉNY ZNAČKY KOVOSAT V POLÁRNOM UCHYTENÍ S PRIEMEROM 120 cm ULOŽENEJ NA ORIGINÁLNOM STATÍVE.